lumen
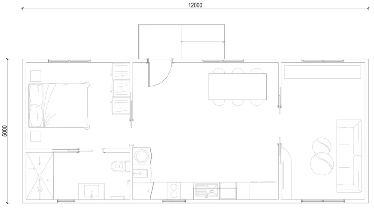
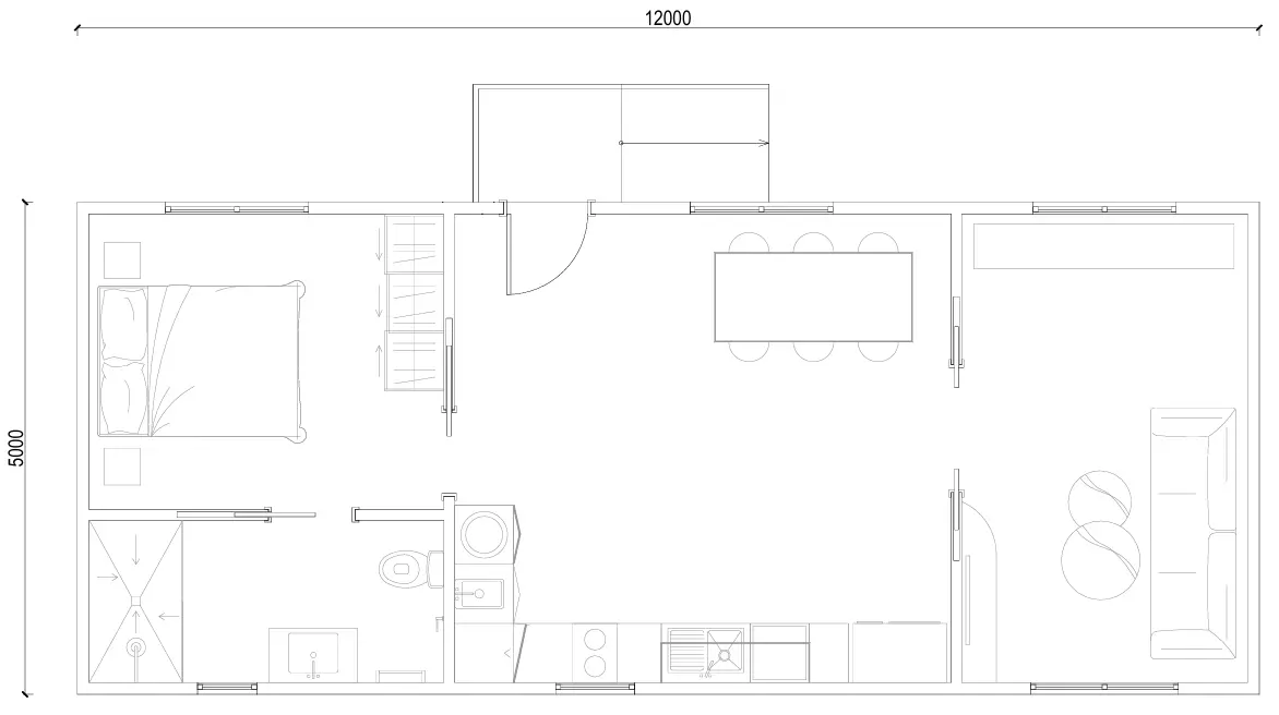
2 Bedroom Granny Flat

Lumen 2-Bedroom Granny Flat is all about light, balance, and flexibility. With two well-proportioned bedrooms, an open-plan living and dining area, and a thoughtfully designed kitchen and bathroom, it offers everything a modern household needs in a compact footprint.

Large windows and a clever layout create bright, airy interiors that feel spacious and welcoming. Whether used as independent living for family, a guest retreat, or a rental opportunity, Lumen is a versatile 2-Bedroom Granny Flat built for Melbourne backyards, blending functionality with timeless Roots Homes design.

  • Steps to entry
  • Design and drafting consultation
  • Timber/Prefab steel frame structure
  • Combination of Colorbond and Composite Eco cladding
  • Fully insulated floor, walls and roof with minimum 7 star energy rating
  • Double glazed aluminum sliding door and awning window with fly screen
  • Steps to front
  • Tiling and waterproofing to bathroom 
  • Upgraded bathroom fittings and fixtures
  • Laminate flooring
  • Laminated Polytec kitchen
  • MPF benchtop

How we do it

Need more information on 1 or 2 bedroom granny flats, backyard studios or pods?

FAQ

Before building a granny flat in Melbourne, it’s important to check local council approvals, zoning laws, and size restrictions. At Roots Homes, we handle the council approval process, ensuring that your 1-bedroom or 2-bedroom granny flat or backyard studio meets all legal requirements.

The cost of a granny flat in Melbourne varies based on size, design, and finishes. At Roots Homes, our affordable granny flats start from $79,900, with options for 1-bedroom, 2-bedroom, and backyard studios.

The maximum granny flat size in Melbourne typically is up to 60 square meters, depending on council regulations. At Roots Homes, we offer a range of studio granny flat designs1-bedroom granny flats, and 2-bedroom granny flats to fit different property sizes.

Construction time for 1 or 2 bedroom granny flats and backyard studios varies but typically ranges from 6 weeks to 3 months.

Adding a studio granny flat, 1-bedroom granny flat, or 2-bedroom granny flat to your property can:
• Increase home value by 20-30%
• Provide rental income for financial security
• Maximize underutilized backyard space

Other products

Contact Us!

* indicates a required field

This site is protected by reCAPTCHA and the Google Privacy Policy and Terms of Service apply.